Weiss Architecture Studio

Quis autem vel eum iure reprehenderit qui in ea voluptate velit esse quam nihil molestiae lorem.

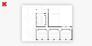
ampliación i.e.s. zoco, córdoba

El presente anteproyecto se plantea con el objeto de ampliar los espacios docentes que actualmente el IES Zoco tiene a disposición de los ciclos formativos que en él se imparten; generando un volumen capaz de dar cabida al programa de necesidades propuesto. Así, mediante la concreción de una nueva construcción de geometría fuertemente regular con un único nivel de altura, ubicada en el espacio abierto existente sobre el porche de acceso principal, la propuesta no solo busca responder a los requerimientos de superficie impuestos; sino generar un esquema de flujos y una estructura de circulaciones con suficiente flexibilidad y capacidad de adaptación – que permita un funcionamiento adecuado y eficiente -.

lo que se propone es la construcción de un armazón estructural independiente que constituya la nueva cubierta del volumen proyectado y, a su vez, complete aquellas áreas necesarias para la materialización del forjado de planta, – superando el perímetro del porche actual y cerrando el espacio existente entre éste y las construcciones colindantes -.

Con todo lo cual se libera el diseño y la formalización interior de las aulas con respecto a la distribución de pilares del porche y su continuidad sobre la cubierta – opción que, si bien sería la más inmediata condicionaría e impediría un adecuado funcionamiento interior de los espacios docentes. Además, con la solución propuesta se evita aumentar las solicitaciones y/o cargas sobre los soportes que sustentan el porche y por ende, condicionar aún más un elemento estructural preexitente.

promotor: agencia pública andaluza de educación

arquitecto: alberto guerrero revuelta

ubicación: córdoba

superficie: 347 m²

inversión: 300.327,67 €

año: 2019

» concurso ganador